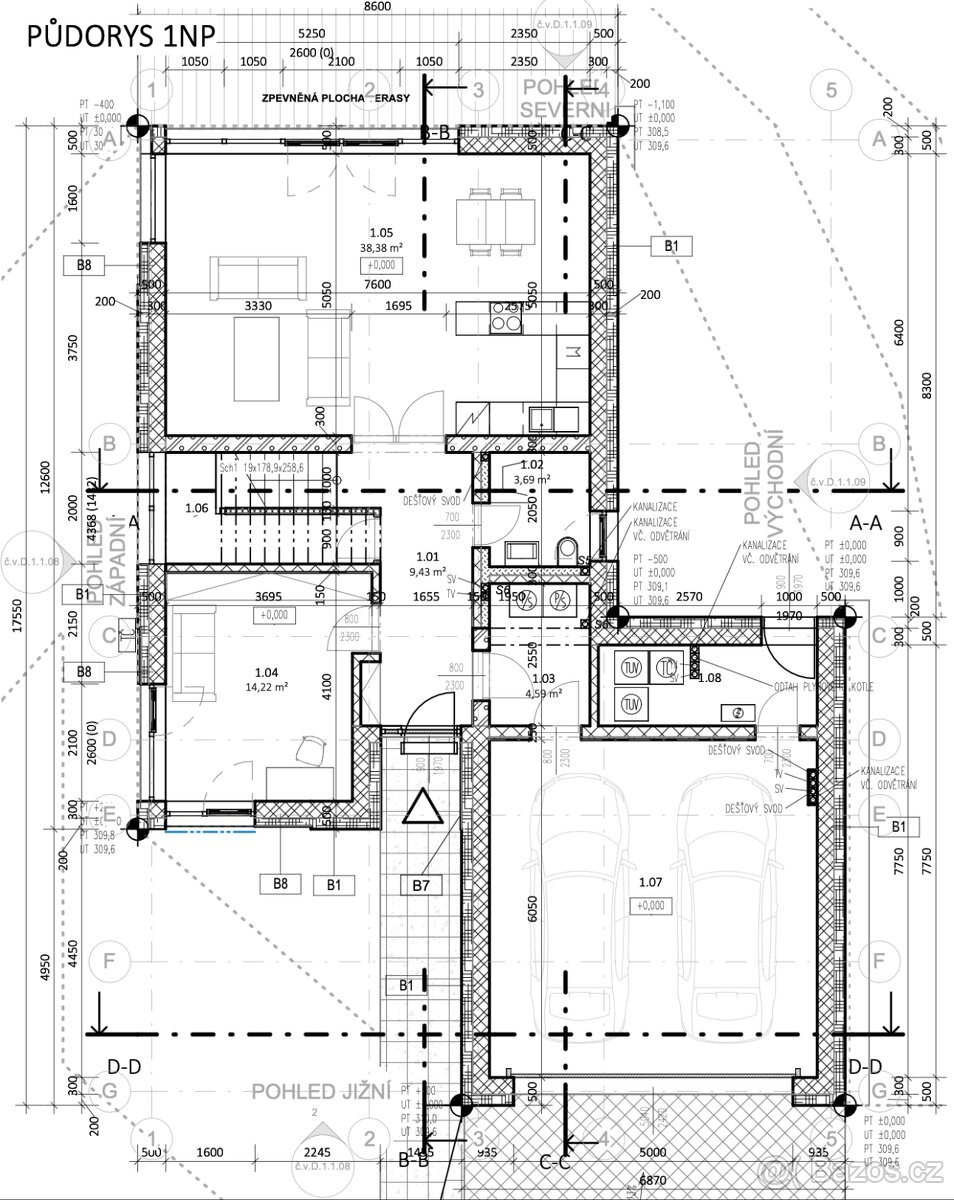
Autorizace, vyhotovení, vyřízení stavebního povolení
Cena: Dohodou. Jsem autorizovaný architekt ČKA a nabízím: ✅ Zpracování kompletní projektové dokumentace pro stavební povolení nebo ohlášení (rodinné domy, přístavby, interiéry, drobné stavby, bourání) ✅ Autorizaci dokumentace zpracované jiným projektantem – převzetí odpovědnosti po řádné kontrole v souladu s právními předpisy. ✅ Doplňování, konzultace a úpravy dokumentace dle požadavků stavebního úřadu. ✅ Inženýring - vyřízení stavebního povolení Vím, že autorizace není formalita – každý projekt pečlivě přezkoumávám a přebírám za něj odpovědnost, jak to vyžaduje zákon i etický kodex ČKA. Možnost spolupráce po celé ČR, osobně i online. Férový a profesionální přístup.





